cad快速看图是一款专业好用的绘图工具,那么cad快速看图怎么修改标注尺寸数字的大小?cad快速看图修改标注尺寸数字大小的方法?下面就让天天下载Ttzip给大家解答下吧!
cad快速看图怎么修改标注尺寸数字的大小?
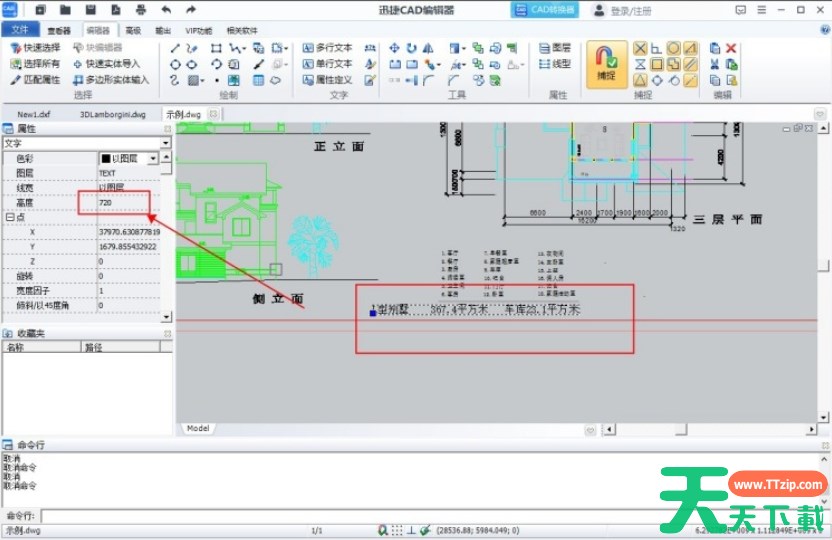
1、打开cad快速看图软件,在上方导航栏中,切换到【编辑器】窗口。
2、然后在编辑器区选中需要修改标注尺寸数字的大小。
3、根据您的需要进行数字调整,所选中的文字内容也会随着数值进行变大变小。
以上就是天天下载Ttzip为您整理的cad快速看图怎么修改标注尺寸数字的大小?cad快速看图修改标注尺寸数字大小的操作流程啦,希望能帮到您。



